昆山花桥明月璟辰苑丨<明月璟辰苑>丨新房价丨交通丨户型丨明月璟辰苑详情

连云港楼市发布 2023-09-12 10:36:07
用手机看
扫描到手机,新闻随时看

扫一扫,用手机看文章
更加方便分享给朋友

在售面积:88㎡三居、98㎡三居、118㎡四居周边直线3km范围内有3个地铁站(花桥博览中心、菉葭、集善),轨道交通发达,距离最近的地铁站是花桥博览中心。楼盘周边3km范围内有3个商场,商业配套成熟,完全可以满足日常购物需求。楼盘周边生态…

明月璟辰苑:400 998 3631

明月璟辰苑:13160136853

楼盘区位:昆山花桥

在售价格:196~335万

在售面积:88㎡三居、98㎡三居、118㎡四居

绿化率:35%

容积率:2.5

得房率:73~76%

交房时间:2024.9.30

交付标准:精装修

交通配套

周边直线3km范围内有3个地铁站(花桥博览中心、菉葭、集善),轨道交通发达,距离最近的地铁站是花桥博览中心。

周边直线1km内有8个公交站周边公共交通较为便捷。

明月璟辰苑:400 998 3631

明月璟辰苑:13160136853

直线3km范围内有12个幼儿园; 6个小学,如昆山市花桥集善小学、陆家中心小学东校区、花桥中心小学校、花桥新建外包区公办小学、花桥金城小学等; 11个中学,如陆家高级中学、昆山新昆洋学校、苏州外国语学校昆山校区、昆山昆城外国语学校、晨光文具集善学校等。

明月璟辰苑:400 998 3631

明月璟辰苑:13160136853

生活配套

楼盘直线3km范围内有3个一级及以上医院。其中昆山市中西医结合医院新院距离楼盘2.1km,昆山市第四人民医院距离楼盘2.7km,为医疗需求提供了保障。

楼盘周边3km范围内有3个商场,商业配套成熟,完全可以满足日常购物需求。

楼盘周边生态环境优越,周边3km范围内有19个公园,距离最近的仅737m,非常方便日常休闲使用。

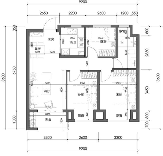
88㎡户型三房两厅一卫

户型解析:主打产品88㎡户型布局为三房两厅一卫,三开间朝南,全明无暗间,南向两个卧室带全尺寸飘窗,是目前市场上非常热销的稀缺户型。在有限的产权面积下最大化的做出了使用空间和功能分区,十分值得考虑。

98㎡户型三房两厅两卫

户型解析:轻奢改善产品,面积不过百却做到了3房2厅2卫的设计,户型方正,全明通透,采光充足,同时做到了三开间朝南的布局和南向联通双阳台设计。

118㎡户型四房两厅两卫

明月璟辰苑:400 998 3631

明月璟辰苑:13160136853

声明:本文由入驻焦点开放平台的作者撰写,除焦点官方账号外,观点仅代表作者本人,不代表焦点立场。