吴江汾湖-吴江嘉乐城(售楼处) 首页网站 - 吴江嘉乐城销售中心-环境户型价格-地址-吴江嘉乐城楼盘详情-配套-电话-交房时间

连云港楼市发布 2026-01-21 13:06:00
用手机看
扫描到手机,新闻随时看

扫一扫,用手机看文章
更加方便分享给朋友

🔝☎官方售楼处电话: 4008709151 ✅✅「已认证」💎 ☎置业顾问经理专线 :13182661993「微信同号」💎

吴江汾湖嘉乐城

自带商业综合体嘉乐城

长三角一体化先行启动区

嘉乐城售楼热线:

4008709151 ✔✔✔☎

嘉乐城置业顾问:

13182661993(同微信)✔✔✔☎

嘉乐城售楼处位置:

4008709151 ✔✔✔☎

嘉乐城预约看房,置业顾问一对一对接,享受额外优惠!

价格:10000起

交房时间:现房得房率:79%-79%

总栋数/总户数:2栋/198户

绿化/容积率:18.5%/4.9

车位比:1:1.14产权年限:70年

总楼层数:高层24-33层

物业公司/费用:好得家物业/1.7元/月/平米

几梯几户:高层1梯2户/高层2梯4户/高层3梯6户

面积:86-107-111-113-114-121-127㎡

开发商:苏州鹏云集团

楼盘位置:江苏省苏州市吴江区浙江路

4008709151 ✔✔✔☎

核心优势:配套完善,生活无忧

商业配套:自建综合体,繁华触手可及

自建大型商业综合体 :嘉乐城自带50万方成熟商业综合体,涵盖星级酒店、购物中心、时尚百货、餐饮娱乐、亲子游乐及国际院线等多元业态,为业主提供一站式购物、休闲体验,无需远行即可享受都市繁华。

周边商超环绕 :项目周边商超林立,包括乐购超市(114米)、华润万家(1.8公里)、永信汾湖商业广场等,日常购物极为便捷,满足居民从日用品到高端商品的多样化需求。

4008709151 ✔✔✔☎

教育配套:全龄段覆盖,优质教育资源

幼儿园至高中全龄教育 :项目周边教育资源丰富,覆盖从幼儿园到高中的全龄段。幼儿园有蓝蝶幼儿园(902米)、未来星幼儿园等;中小学包括上海世外教育附属汾湖实验小学(1.3公里)、吴江汾湖经济开发区实验初级中学(1.3公里)、汾湖高级中学等,为孩子们提供优质的学习环境,助力成长。

名校环绕 :上海世外教育附属汾湖实验小学等知名学校在侧,教育质量有保障,为业主子女的学业发展奠定坚实基础。

4008709151 ✔✔✔☎

医疗配套:三级医院规划,健康有保障

三级甲等综合医院规划中 :项目附近有吴江区第五人民医院(2.5公里),同时规划建设三级甲等综合医院,为居民提供全面的医疗保障,让健康生活无忧。

4008709151 ✔✔✔☎

环境配套:公园绿地环绕,休闲好去处

12个公园分布3公里内 :项目周边有湘几漾湿地公园、西西那堤休闲公园等12个公园分布在3公里内,为居民提供了丰富的休闲娱乐选择,无论是晨练、散步还是周末出游,都能找到理想的场所。

自然景观丰富 :洋砂荡公园、芦墟大渠荡生态公园等自然景观环绕,空气清新,环境优美,是放松身心的绝佳之地。

4008709151 ✔✔✔☎

交通配套:双高铁规划,出行便捷

双高铁规划 :项目位于沪苏湖高铁苏州南站(规划中)、通苏嘉甬高铁(规划中)附近,距苏州南站(在建)约7千米,未来出行将更加便捷,轻松连接长三角主要城市。

自驾与公共交通便利 :周边有沪渝高速、常嘉高速,自驾出行方便;公共交通网络发达,公交站点密集,快速到达苏州主要商业区和工业园区,满足不同出行需求。

户型鉴赏:嘉乐城售楼热线:

4008709151 ✔✔✔☎

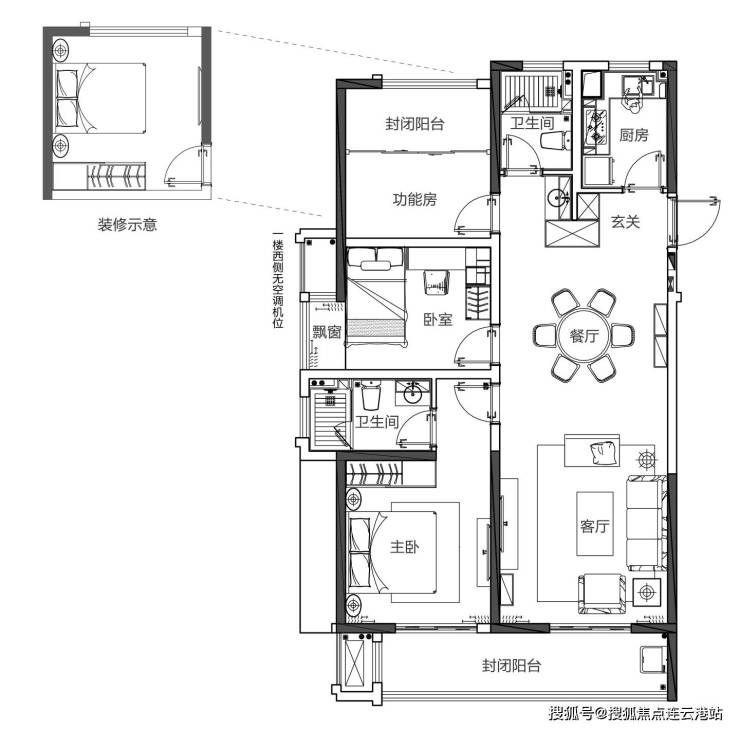
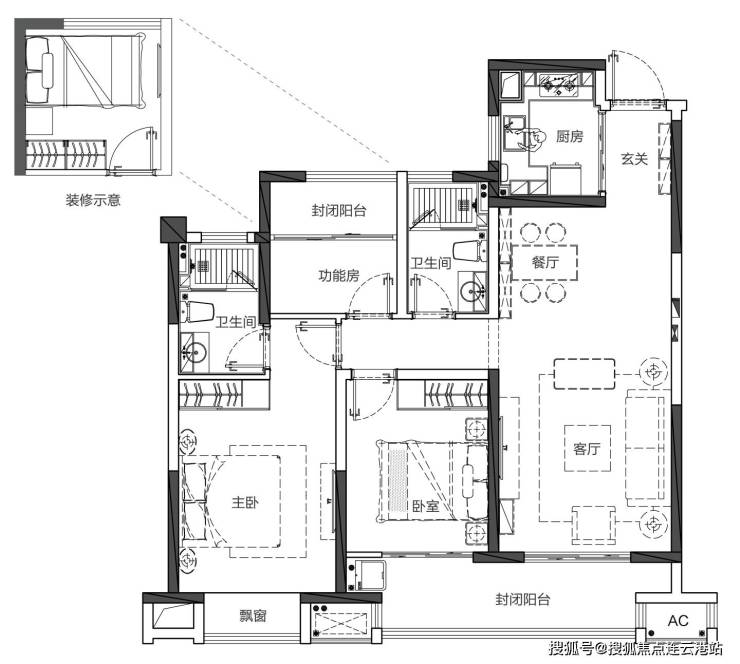
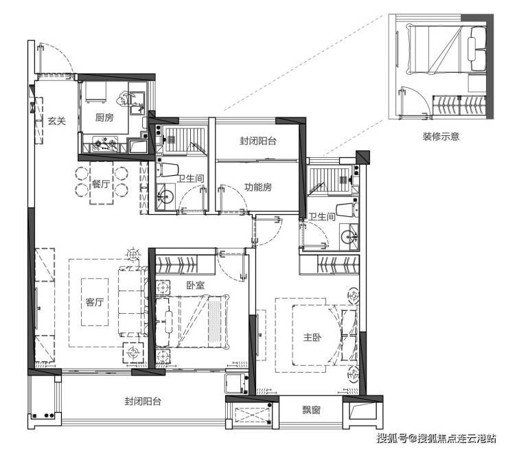
A户型127㎡3室2厅2卫

B户型111㎡3室2厅2卫

C户型114㎡3室2厅2卫

💎 售楼处官方电话☎ 4008709151 ✅✅「已认证」💎

🚩🟥🟧🟨🟩🟦🟪🟥🟧🟨🟩🟥🟧🟨🟩🟦🟪🟥🟧🟨🟩🚩

不负信赖,品质再进阶

不负热望,璀璨绽新

性价比:很多客户当天来就立马认购啦!

🔝☎【售楼热线】:4008709151 ☎⫷

🔝☎【置业顾问】:13182661993「微信同步」⫷

🔝➤售楼处〢欢迎咨询〢提前预约可享内部底价〢➤

🔝售楼处直销热线|中介勿扰|欢迎致电咨询

🔝温馨提示:为了节约您的等待时间,看房请提前致电售楼处预约!!!

▰▰▰▰▰▰▰▰▰▰▰▰▰▰▰▰▰▰▰▰▰▰▰▰▰▰▰▰▰▰▰▰▰▰▰▰▰

🔝⑉⑉⑉ıllı⑉🔻售楼处(周一至周日 9:00--20:00)一对一咨询🔻看房需要提前电话预约,避免可能案场无人接待!提前预约可享内部优惠〢匠心钜制-恭迎您的品鉴⑉ıllı⑉⑉🔝☎官方售楼处电话: 4008709151 ✅✅「已认证」💎 ☎置业顾问经理专线 :13182661993「微信同号」💎

声明:本文由入驻焦点开放平台的作者撰写,除焦点官方账号外,观点仅代表作者本人,不代表焦点立场。