2025 年融创杭望云潮城楼盘深度剖析:钱塘区房价户型及小区环境
扫描到手机,新闻随时看
扫一扫,用手机看文章
更加方便分享给朋友
下沙区域的【融创杭望云潮城】
☎️专属VIP热线:4009983632【售楼咨询热线】☎️
☎️购房置业热线:17132883311(微信同号)☎️
➤售楼处热忱欢迎您前来咨询〢提前预约能够享受内部特别优惠〢➤
金沙湖示意图片,源自网络,仅供参考使用
融创杭望云潮城项目详情
精装限定价格:37500元/㎡(其中包含3500元精装费用)
项目规模:总计9幢高层住宅(其中8#楼为公租房:杭望云潮城8#)
户型面积段:大约为105㎡、108㎡、130㎡、142㎡
总价范围:500万起
容积率:约2.8
绿化率:约35%
总户数:1719户
梯户配比:2梯4户
产权性质:70年产权
楼层层数:21 - 27层
交付时间:2024年6月
物业费标准:2.7 + 0.5
物业服务公司:融创物业
☎️VIPline:4009983632【售楼热线】☎️




▲融创在杭州部分已交付的楼盘展示
交通配套情况
距离地铁1号线高沙站直线距离约800米,往西可直达杭州东站、武林广场、西湖、滨江等地;往东能直接抵达萧山机场 ,构建起高效链接全城的出行便捷体验。
通过金沙大道、金沙湖隧道、德胜快速路可直接抵达城市核心区域
杭曜之城与杭望云潮城生活圈示意图片
商业配套设施
项目处于杭州三大核心商圈之一的金沙湖商圈。
与龙湖天街、金沙印象城、下沙银泰这三大商业综合体相邻
周边还有希尔顿嘉悦里、希尔顿逸林、龙湖皇冠假日、开元酒店四座五星级酒店,以及湖畔中心、金沙世纪、泰美国际、东部中心等甲级写字楼
杭曜之城和杭望云潮城区位图
依据规划,下沙即将步入三线地铁时代。杭曜之城与杭望云潮城不仅临近地铁1号线(高沙路站),未来还将拥有地铁21号线(规划中)、8号线(二期规划),三线地铁的规划远景,让出行变得更加方便快捷。
龙湖天街示意图片,来源于网络,仅供参考
除此之外,项目直线距离两公里范围内还有两大三甲医院为您的健康保驾护航,两大人文地标“杭州小三亚”金沙湖公园(二期正在建设中)和金沙湖大剧院(在建中)供您休闲娱乐。四大商圈加上三线地铁(规划)以及两大三甲医院和两大人文地标的完善配置,形成强大的吸引力,更加繁华便利的下沙生活即将开启。
邵逸夫医院(下沙院区)示意图片,源自网络,仅供参考
医疗配套情况:邵逸夫医院下沙院区,这是一所公立综合性三甲医院,还有浙江省中医院
下沙致力于打造高品质宜居区域,持续完善城市功能配套。以高教园区为中心,区域内汇聚了杭州市文海学校、金沙湖实验学校、杭州东南中学、杭州市实验外国语学校等众多优质教育资源。杭曜之城与杭望云潮城直线距离约2公里内有超过10所学校环绕,其中文海教育集团旗下的文翰学校(文海新校区)(规划中)就在项目周边,为该区域的优良学风增添新的光彩。☎️VIPline:4009983632【售楼热线】☎️
文海学校示意图片,图片来源于网络,仅供参考
教育配套详情
周边住宅的学区划分到文清小学,该校由文海实验学校直接管理,是文海教育集团的一个校区,学生毕业后直接升入文海实验学校(初中部)就读。除了项目自身需要配建的幼儿园之外,项目周边约300米处还有景苑小学、景苑中学。
一环指的是小区内长度约420米的归家漫步环形道路。和5号地块类似,这条漫步环路贯穿了整个项目的核心景观区域,让您在运动的同时也能享受漫步的惬意。回到家,就是健康美好生活的开端。
一厅指的是我们小区中央占地面积约3500平方米的潮流会客厅,这也是小区的核心景观所在,涵盖了潮流会客厅、时尚运动花园、儿童游戏场、植物认知花园、青年创客空间等场景,既为小区各个年龄段的业主提供了新颖的社交环境,又打造出极具个性化的生活场景。(您可以自行想象,描绘生活场景)
四园分别是主入口花园、果壳口袋花园、林下社交露营花园、休闲交流花园
主入口花园设置了圆形水心空间。作为回家的必经之处,一棵树、一汪池水最能让人心神宁静,回家就仿佛回归内心的宁静港湾。2号楼和4号楼之间同样设有私享口袋花园,为您提供极为私密的交流、游玩、约会空间。
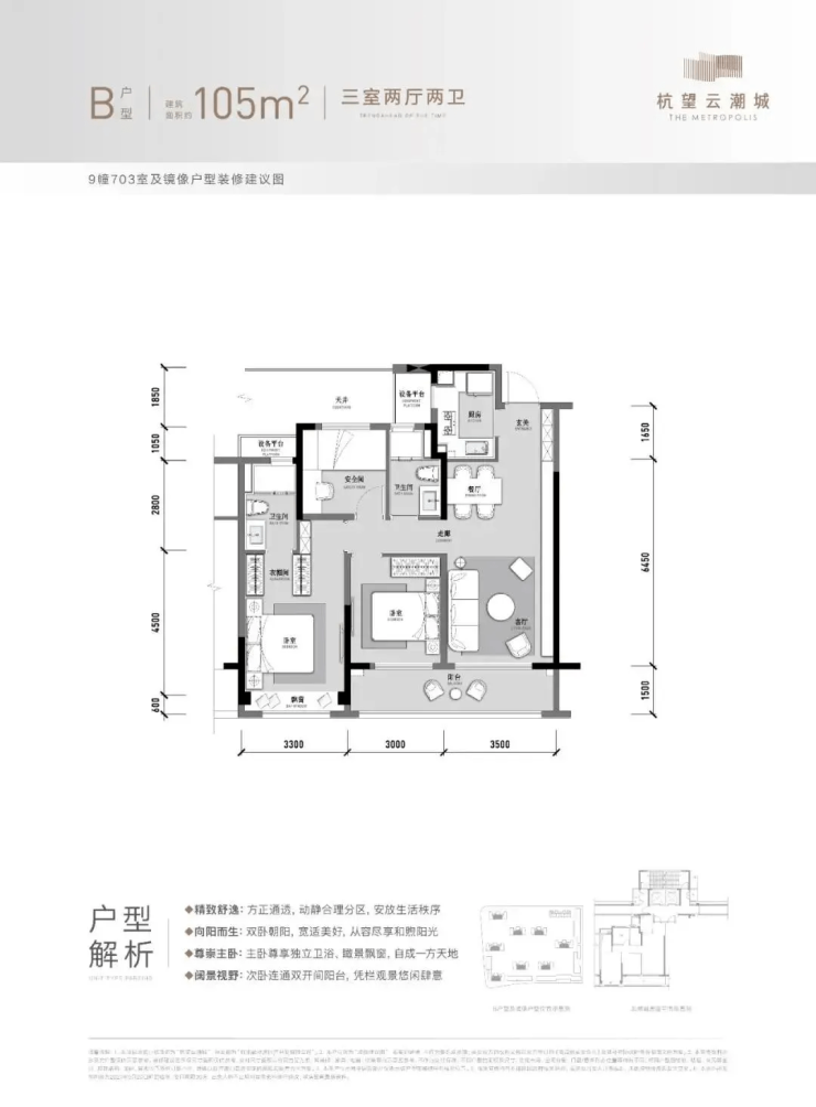
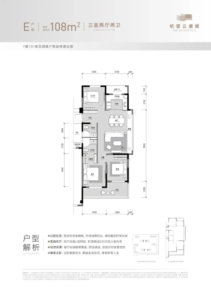
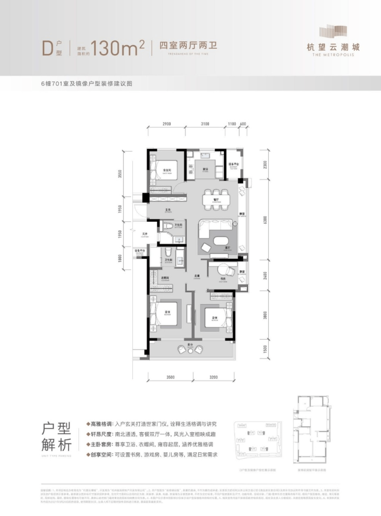
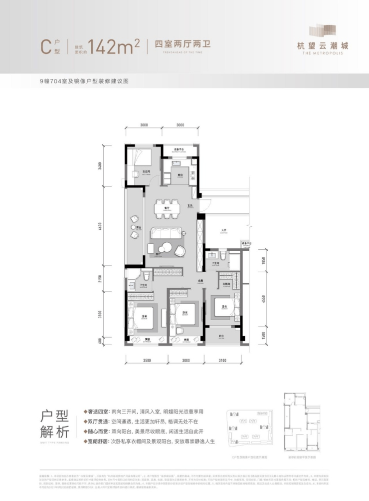
至于户型面积方面,也有一定了解,大约在105 - 108 - 130 - 142平方米都有,总价大概在290 - 450万左右,刚需和改善型购房者都值得关注。无论是厨房、客厅,还是客厅/卧室双向阳台,该项目户型都明显优于同期市场上相同面积段的户型
☎️VIPline:4009983632【售楼热线】☎️


该户型是项目的起步户型,建筑面积约105 - 108平方米,格局为三房两厅两卫。


该户型是项目的四房起步户型,建筑面积约130平方米,格局为四房两厅两卫。

该户型是项目最大的改善户型,建筑面积约142平方米,格局为四房两厅两卫。




下沙的【融创杭望云潮城】
☎️VIPline:4009983632【售楼热线】☎️
☎️置业热线:17132883311(同微信)☎️
➤售楼处诚邀您前来咨询〢提前预约可享受内部优惠哦〢➤
声明:本文由入驻焦点开放平台的作者撰写,除焦点官方账号外,观点仅代表作者本人,不代表焦点立场。
