苏州园区青剑湖夷浜路-恒泰象屿·时光青澄 !在此可览售楼中心首页网站,速探楼盘详情、臻美户型、最新价格、精准地址与前沿资讯
扫描到手机,新闻随时看
扫一扫,用手机看文章
更加方便分享给朋友
新盘登场,闪耀苏城
园区独有的小户洋房
售楼热线:400 870 9151 ✔✔✔☎
置业顾问:131 8266 1993(同微信)✔✔✔☎
售楼处位置咨询电话:400 870 9151 ✔✔✔☎
提前预约看房,将有置业顾问提供一对一贴心对接服务,还可享受额外优惠!
开发商:苏州恒泰、象屿地产 (双国企实力保障)
项目占地面积:约3.6万平方米
项目总建筑面积:约8.5万平方米
绿地率:不低于35%
容积率:不高于1.5
规划住户数量:约496户
机动车位数量:约681个
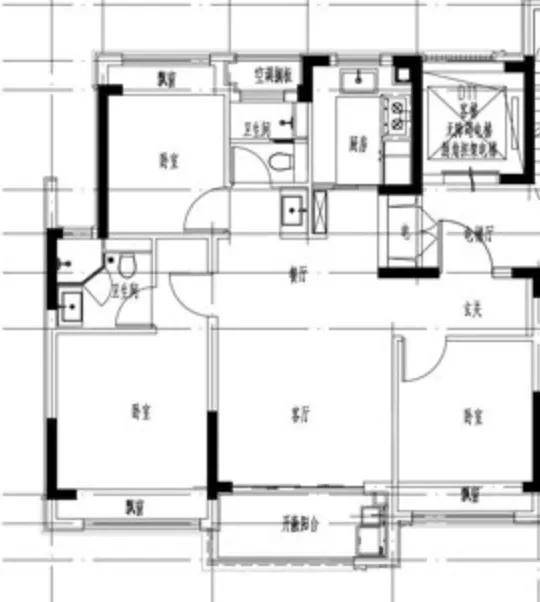
**产品形态**:项目规划建设13栋8 - 11层的纯洋房。**户型面积**:洋房的建筑面积约为91平方米、112平方米以及128平方米。**交付标准**:以装修状态交付。**楼户比**:采用2梯4户的设计。各楼层对应楼号如下: - 8层:1号楼 - 10层:2号、3号、5号、7号、8号、9号、11号、12号、14号、15号楼 - 11层:13号、16号楼**物业公司**:由江苏象屿物业管理有限公司负责管理。**项目地址**:位于苏州园区青剑湖区域,具体位置在夷浜路与科成路的交汇处 。

【品牌·青澄】再度闪耀苏州新核
苏州恒泰——园区的开拓者与运营者
作为中新合作苏州工业园区直属的大型国有企业,苏州恒泰成绩斐然。其累计开发各类物业载体面积约达760万平方米,旗下诸多项目堪称经典,像苏州中心、苏州自贸商务中心等,皆是极具代表性之作。如今,苏州恒泰在园区商业地产、产业地产以及租赁住房领域,已然成为重要的载体持有方与运营主体。

象屿地产:国匠精工的践行者
象屿集团作为厦门市属国有企业,在《财富》世界500强中位居第142位。而象屿地产,作为象屿集团旗下的全资子公司,31年来始终深耕长三角核心都市圈,是在华东区域颇具声誉的精品住宅开发商。多年来,象屿地产凭借自身实力,连续多次荣获“中国房地产开发稳健十强”以及“中国华东房地产品牌价值TOP10”等荣誉。在销售业绩方面,象屿地产的表现同样出色。2024年上半年,在全国销售金额(操盘)排行榜中,象屿地产位列第30位;于上海市场销售金额(操盘)排名中,位列第17位;在苏州市场,其销售金额更是占据榜首之位 。

【土地·青澄】十字正核的蓬勃盛景工业园区——长三角的卓越典范 苏州的崭新名片苏州工业园区堪称“中国改革开放的关键窗口”以及“国际合作的成功楷模”。在2023年,其地区生产总值高达3686亿元,在全市生产总值中位居榜首。该园区成绩斐然:在国家级经开区综合考评中,已连续八年拔得头筹;于国家高新区综合评价里,位列全国第四。同时,这里还是中新合作的杰出代表,大约101家世界五百强企业在此投资并落地了174个项目 ,成为国际合作的典范之作。

### 一、交通配套- **轨道交通**:项目与地铁 3 号线双马街站相距约 1.8 公里,步行在半小时左右即可到达。此外,处于规划中的地铁 16 号线,在未来投入使用后,将极大提升居民出行的便利性。- **主干道**:该楼盘紧邻星湖街这一城市主轴线路,凭借这一优势,能够迅速与湖东 CBD 以及园区核心商圈实现连接,为居民自驾出行提供了极大的便捷性。而且,此地距离园区高铁站直线距离仅约 5 公里,借助高铁站,可直达长三角核心城市群,极大地拓展了出行范围。- **公共交通**:楼盘周边公交网络布局广泛,总计覆盖 73 个公交站点,能够充分满足居民日常短途出行的多样化需求。### 二、商业配套- **大型商圈**:在楼盘周边 2 公里的范围内,有颇具影响力的龙湖天街商圈。驾车大约 8 分钟就能抵达科技城邻里中心。值得一提的是,星湖街沿线串联起了圆融商圈、永旺商圈等多个发展成熟的商业体,为居民提供了丰富多样的购物、休闲、娱乐选择。- **社区商业**:目前,项目主要依靠底商来满足居民的基础生活需求。不过,在楼盘周边 500 米范围内,像便利店这类小型商业配套设施还不够完善,仍有较大的发展空间。### 三、教育配套- **学校**:在楼盘周边 3 公里的区域内,有园区直属公立的星澄学校。同时,这里还汇聚了伊顿双语幼儿园、伟才厚永幼儿园等诸多优质教育资源,为孩子们提供了良好的学习成长环境。- **规划**:该板块正规划打造科创产业园区,随着产业园区的逐步建成,未来将会吸引大量高端人才家庭在此聚集。这一趋势将有力推动该区域教育资源进一步优化升级,为孩子们带来更优质的教育条件。### 四、医疗配套 **五、生态配套**在生态配套方面,该区域优势显著。首先是湖泊公园资源,项目紧邻阳澄湖、青剑湖、翡翠湖这三大水系。周边环绕着阳澄湖湖滨生态体育公园、翡翠湖生态公园等多处绿地,这些绿地共同构建起一个低密宜居的生态圈,让居民能够尽情享受自然的美好与宁静。从社区绿化来看,项目自身的品质也十分出色。其绿地率≥35%,容积率仅1.5 ,楼间距开阔,为居民营造出极为舒适的居住环境,让每一位住户都能在社区中感受到惬意与放松。**六、产业及发展**该项目处于阳澄南岸创新城的核心位置,在产业规划上极具潜力。这里规划布局了阳澄数谷、总部经济集群。按照规划,未来此地将新增近百座办公楼宇,同时还会创造约20万的就业岗位。如此大规模的产业发展,必将有力带动区域价值的提升,为该区域注入源源不断的活力与发展动力。**基础医疗**医疗配套也是居民生活的重要保障。在距离项目4公里的范围内,有星湖医院,能够满足居民日常的就医需求。而在9公里的覆盖范围内,有九龙医院(三甲),这家医院可以提供综合性的医疗服务,为居民的健康保驾护航。综上所述,该项目配套呈现出鲜明特点。交通、生态以及规划产业成为突出亮点,商业和教育资源基础已经较为完善,不过在短期内仍有优化提升的空间。整体而言,项目将自身定位为园区北部宜居低密改善型社区,致力于为居民打造高品质的居住体验。






户型赏析:项目推出三个不同面积段的户型,分别约为 90㎡、112㎡以及 128㎡,均为一梯两户的设计,且交付时配备精装三大件。先来看最小的约 90㎡户型,其设计堪称精妙。该户型做到了 3 房 2 卫的布局,令人惊喜的是,三开间全部朝南,能够充分享受阳光的青睐。全屋赠送 3 个大飘窗,不仅增加了室内的使用空间,更为居住者带来了别样的观景视野。此外,开敞式阳台设计,让空间更加通透。客卫采用干湿分离的人性化设计,U 型厨房更是极大地提升了烹饪操作的便利性。这样的户型对于想要置业的购房者来说,无疑是一个近乎满分的上车之选。值得一提的是,其中 10F 的洋房,建筑面积约 90㎡,户型为 3 房 2 卫,不过此栋楼的梯户比为 2 梯 4 户 。
要说最令人惊艳的户型,还得是建面约112㎡的这款,竟然打造出了4房2卫的格局!
该户型做到了大三开间朝南,全屋更是有多达4个飘窗免费赠送。不仅如此,还设有独立入户玄关,主卧为套房设计……功能性极为强大!即便是三代同堂的二胎家庭居住,也完全没问题!
并且,在不出意外的情况下,这大概率会是当下园区新房里,总价最低的4房户型。
此房源为8F洋房,建筑面积约112㎡
户型为4房2卫,采用2梯4户设计
对于预算较为充裕、追求居住品质改善的家庭而言,一个令人心动的户型出现了。这便是位于10F的洋房,建筑面积约128㎡。此户型为4房2卫的设计,采用2梯4户的布局,居住起来更为便利与私密。走进室内,会发现约128㎡的空间十分舒适。户型是大三房的规划,还配备了双联阳台,客厅则是大气的大宽厅设计,无论是日常起居,还是招待亲朋好友,都能提供充足且惬意的空间。

闪耀苏城,新盘入市
园区唯一小户洋房
若您正寻觅心仪居所,机会来啦!我们在此诚挚向您介绍园区独一无二的小户洋房项目。售楼热线:400 870 9151 ✔✔✔☎置业顾问电话:131 8266 1993(同微信)✔✔✔☎您若想了解售楼处位置,同样拨打:400 870 9151 ✔✔✔☎现在预约看房,将有专业的置业顾问为您提供一对一贴心对接服务,而且还能享受额外优惠哦!让您的购房之旅更加轻松愉悦,体验专属的尊崇待遇。
声明:本文由入驻焦点开放平台的作者撰写,除焦点官方账号外,观点仅代表作者本人,不代表焦点立场。
